LINE UP
商品一覧・料金




¥10,020,000~(+tax)
カスタムオーダー・住居プランとなります。
大規模な間取りの変更はできませんが、
オプションよりお好みの色柄や設備をお客様ご自身でカスタムしていただくことができるオーダープランです。
こちらでは一部オプションをご紹介しておりますので、詳細はお問い合わせいただけますと幸いです。
INTERIOR
EXTERIOR
FACILITY
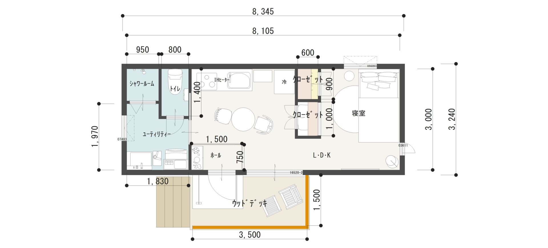
DRAWING


CONTACT
トレーラーハウスに関するご質問やご相談は
お電話もしくは以下フォームからお気軽に
お問い合わせください。
OTHERS
CONTACT
お問い合わせ
HCTトレーラーハウスは、愛知県名古屋市に拠点を構え、事務所・店舗・宿泊施設・別荘など、様々な用途に最適なトレーラーハウスを製造・販売しております。工務店ならではの高いデザイン性と確かな建築技術を活かし、お客様の理想を叶えるトレーラーハウスを提供します。豊富なサイズラインナップを取り揃え、オーダーメイド・セミオーダーメイドで自由な設計のトレーラーハウスを提供することができるため、まずはお気軽にご相談ください。資料ダウンロード・無料見学会も随時受付中です。