- オフィス
- ミーティングルーム/作業場
機能美に拘ったトレーラーオフィス/愛知県碧南市







- お客様情報
- 合同会社HirameQ 様
- Webサイト・
SNS情報 - 設置エリア
- 愛知県碧南市
- 長さ/専有面積
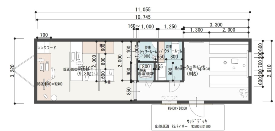
- W3.5m×L11m
「隠し扉、エンジンドア、高機能なトレーラーオフィス」
ハードウエア、モバイルアプリ、Webサイト等の開発、製造、販売、運用を行われている会社様のオフィス兼作業場として納品いただきました。
壁と一体化した様な隠し扉、制御可能な鍵を搭載したエンジンドア、EV車充電用のEVコンセント等機能性に拘った画期的な一台となりました。
将来的には場所を移し、オフィス兼住居として使用される予定のお客様。その為シャワールーム・パウダールーム・洗濯機を追加できる仕様に仕上げております。
デザインは爽やかなホワイトをベースカラーに、ミントグリーン・ブルーを取り入れた爽やかな仕上がりとなりました。
ご自身の作業場は集中力を高めるため窓を無くし、お客様を迎え入れるミーティングルームには開放的な窓を中心にアットホームな雰囲気でお話のできるソファを。各部屋の目的に合わせた作りとさせていただきました。


