- 店舗
- ドッグラン・トリミングサロン・カフェ
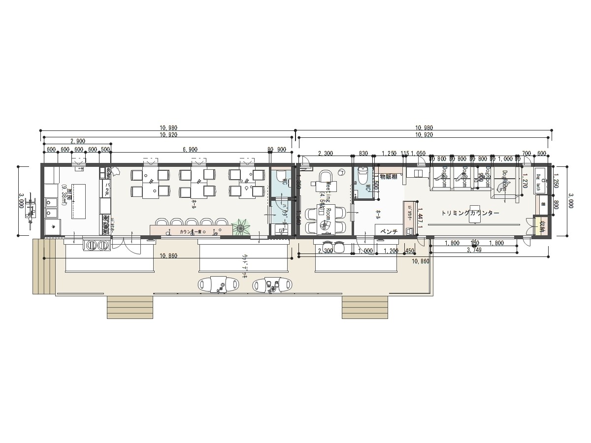
ドッグラン・サロン・カフェの複合施設/愛知県豊田市









- お客様情報
- 株式会社らいむぎ
- Webサイト・
SNS情報 - 設置エリア
- 愛知県豊田市
- 長さ/専有面積
- 11M×3.5M
11M×3.5M - オプション
- ドッグラン/トリミングスペース/お打ち合わせ室/厨房/カフェフォトスペース/トイレ
「健康ファーストのカフェ・ワンちゃんファーストのトリミングサロン」
2025年夏オープンのドッグランに、併設のトリミングサロン・カフェとして
HCTのトレーラーハウスを2台採用いただきました。
■CAFE
カフェのテーマは「健康ファースト」
癒しの場となるよう、ナチュラルな木目、ホワイト、パステルカラーを使用し柔らかい印象に仕上げました。また、ドッグランで遊ぶワンちゃんを眺められるようカウンターへ開放的なFIX窓を取り付けました。
■DOG SALON
HALL部分には、あえて作り付けの家具は配置せず
ワンちゃんのフォトスポットとしてご利用いただける空間に仕上げました。
壁に背景スクリーンを下げることで、様々なバリエーションで撮影をお楽しみいただける仕様となっております。
ドッグサロンの奥には、従業員の皆様用のお打ち合わせ室をご用意。
お客様が飾られる予定のアートに合わせて北欧テイストのクロスを採用いたしました。



