- オフィス
- お打ち合わせ室・作業場
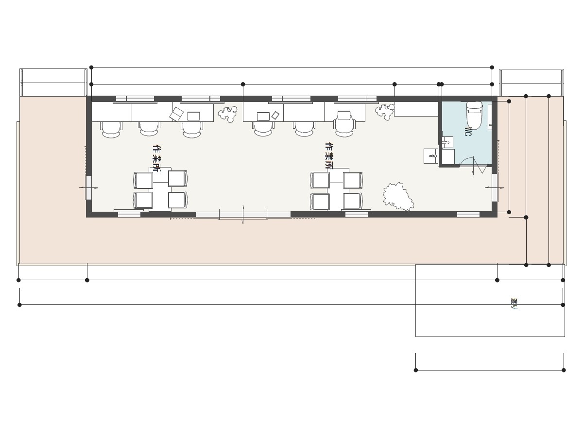
就労継続支援 B型の作業場/岐阜県各務原市





- お客様情報
- フェニックスグループ
- Webサイト・
SNS情報 - 設置エリア
- 岐阜県各務原市
- 長さ/専有面積
- 11M×3.5M
- オプション
- オープンウィン/トイレ/オーニング/ウッドデッキ
「トレーラ-ハウスを使用した増築」
既存の特別養護老人ホームのお隣に作業場として納品いただきました。
コの字のウッドデッキを芝生広場面に向け配置し、庇・オーニングを活用することで
天候に左右されずいつでも安心してご利用いただける空間となりました。
外壁、内装共に温かみのある木目を使用しナチュラルなデザインに仕上げました。
HCTのトレーラーハウスは18種類と豊富なサイズ展開をご用意しており、
増築や用途変更にも柔軟に対応可能です。
ウッドデッキについてもオーダーが可能のため、既存建物との行き来もスムーズな導線を確保いただけます。


